
HIRAYA STYLE
コンセプト 永く暮らす家「平屋」
1941年創業以来、製材業から注文住宅、リフォームと事業を展開してきました。
コンセプトは永く暮らす家です。耐震性や断熱性を考えた、快適で永く住める家を考えてきました。
しかし以前に建てて頂いたお客様より建物を改築したい、2階部分はいらないので1階を充実させたいといったお話を聞くようになりました。
当然、建物を建ててから20年30年もすれば家族構成も違いますし、体の健康状態も違います。
新築時の住まいは子育て仕様の家となっており、子どもが大きくなって巣立った後2階部分は、必要なく逆に階段の上り下りが大変となってきます。
そのため本当に快適に永く住める家は1階で暮らせる「平屋」の住まいではないかと考え、『平屋スタイル』の販売を開始しました。
平屋の住まいは以前からありましたが、2階建が主流でした。理由は土地と価格の問題にあります。
平屋にすれば1階部分が大きくなり土地も大きい土地が必要になります。そして1階部分を広げれば、コストは割高になります。
そのため間取りをできるだけコンパクトかつ無駄のない設計にし、シンプルな外観形状にすることで、コストを抑えた平屋の住まいを実現しました。
すべての世代が永く暮らす家『平屋スタイル』を提案します。
電話でのお問い合わせ:058-248-5581
「理想の平屋」が見つかる、平屋専門店の施工事例
篠田建設の平屋スタイルが選ばれる5つの理由
- 2階が無い平屋だからこその省ける職人さんコストが抑えられる
- 地域密着の素早い対応
- プランを事前に作成し、打ち合わせコストの効率化
- 適正価格を誠実に告知し、同業者が驚く低価格を実現
- 無駄な広告費を徹底的に削減
※表示金額は建物本体価格(税抜)になり、別途土地代、付帯工事費がかかります
-
人気No.1★★★
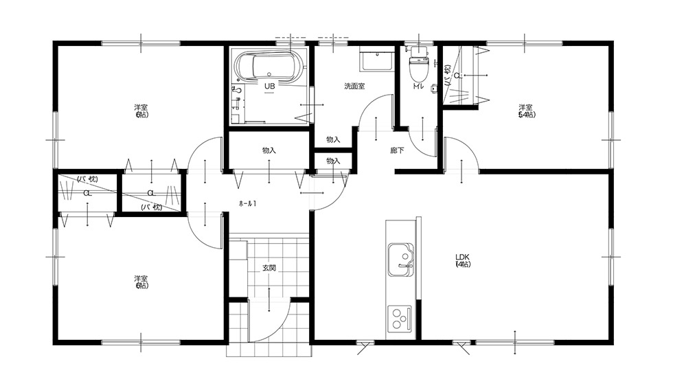
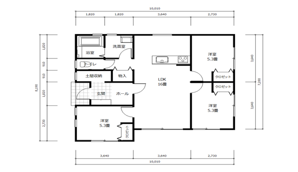
S-22南玄関
3LDK- 平屋スタイルS-22
- 3LDK 南玄関
- 施工面積
- 75.35㎡(22.79坪)
- キッチン
- 2550mm
- 付帯工事費用
- 200万円


1169万円
- 施工事例:75.35㎡
- 間取り:3LDK/22.79坪
- 対面キッチン
- 洗面室収納
-
人気No.2★★
S-19 南玄関
2LDK- 平屋スタイルS-19
- 2LDK 南玄関
- 施工面積
- 67.07㎡(20.29坪)
- キッチン
- 2550mm
- 付帯工事費用
- 200万円


1079万円
- 施工面積:67.07㎡
- 間取り:2LDK/20.29坪
- 対面キッチン
-
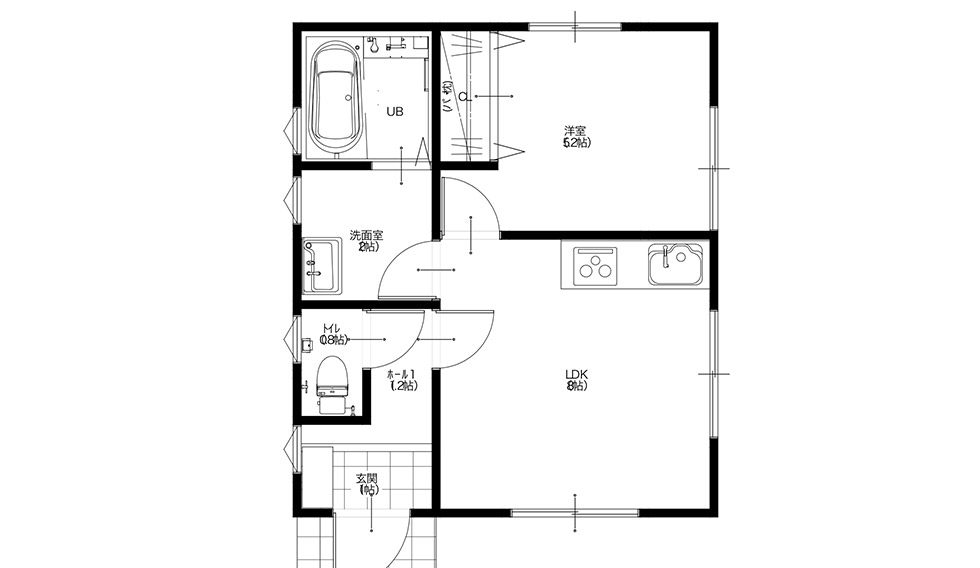
人気No.3★
S-10 南玄関
1LDK- 平屋スタイルS-10
- 1LDK 南玄関
- 施工面積
- 34.78㎡(10.52坪)
- キッチン
- 1800mm
- 付帯工事費用
- 200万円


630万円
- 施工事例:34.78㎡
- 間取り:1LDK/10.52坪
-
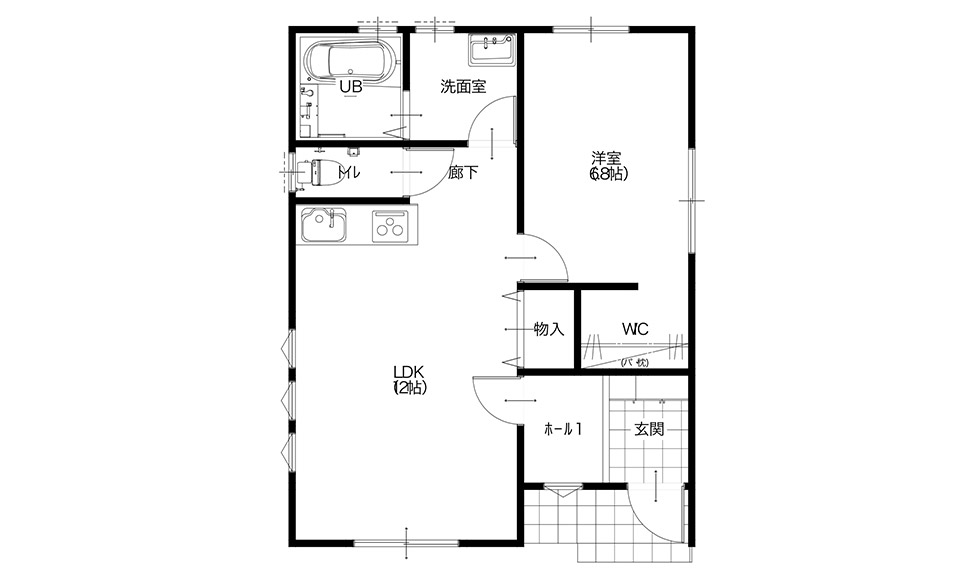
S-15 南玄関
1LDK- 平屋スタイルS-15
- 1LDK 南玄関
- 施工面積
- 52.17㎡(15.78坪)
- キッチン
- 1800mm
- 付帯工事費用
- 200万円


797万円
- 施工事例:52.17㎡
- 間取り:1LDK/15.78坪
- ウォークインクローゼットあり
-
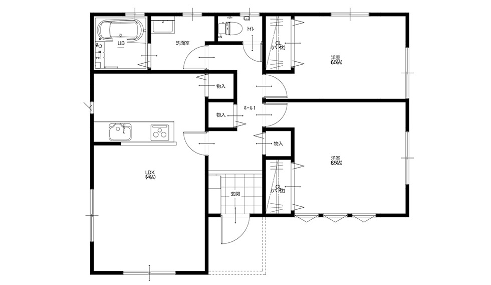
S-21 南玄関
2LDK- 平屋スタイルS-21
- 2LDK 南玄関
- 施工面積
- 69.54㎡(21.04坪)
- キッチン
- 2550mm
- 付帯工事費用
- 200万円


1129万円
- 施工事例:69.54㎡
- 間取り:2LDK/21.04坪
- 対面キッチン
- 洗面室収納
- パントリーあり
-
EW-22 東・西玄関
3LDK- 平屋スタイルEW-22
- 3LDK 東・西玄関
- 施工面積
- 76.18㎡(23.47坪)
- キッチン
- 2550mm
- 付帯工事費用
- 200万円


1184万円
- 施工事例:76.18㎡
- 間取り:3LDK/23.47坪
- 対面キッチン
- 洗面室収納
※表示金額は建物本体価格(税抜)になり、別途土地代、付帯工事費がかかります
電話でのお問い合わせ:058-248-5581
店舗情報

- 会社名:
- 篠田建設株式会社
- 【本社】
- 〒500-8152 岐阜市入舟町3-32-3
- 【展示場】
- 岐阜市藪田1丁目住宅総合展示場内
- 営業時間:
- 10:00~17:00
- 定休日:
- 火・水曜日





